Angeliki Lo - architect
Αγγελική Λω
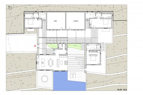
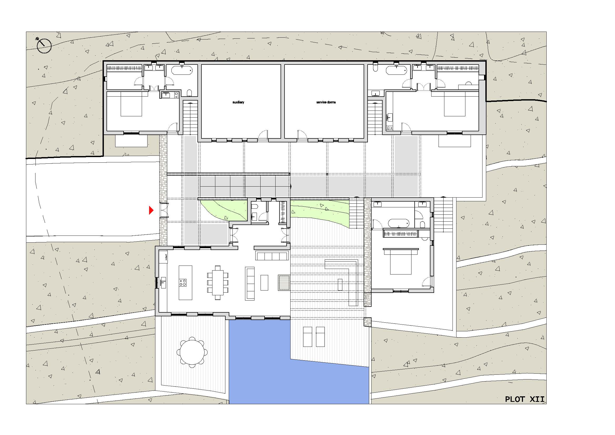
Architectural design of fifteen luxurious Villas with pools in Fanari, Mykonos.
Plots subdivision study for property in Fanari, Mykonos and Architectural detailed design for the construction of fifteen luxurious Villas within the divided plots.
















